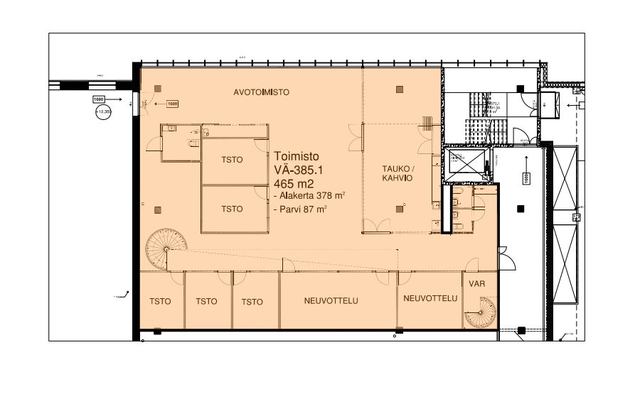
Toimitilan Siltapuistokatu 14 tiedot:

Kauppakeskuksen kolmannessa kerroksessa sijaitseva hulppea kaksikerroksinen toimistotila, jossa työhuoneita, avokonttori, keittiö, neuvottelutila, parvi ja suuri ikkunaseinä sisäpihalle. Valoisat ja modernit tilat, joissa myös vanhan puuvillatehtaan tunnelmaa. Esteetön ja säältä suojattu kulku tilaan kauppakeskuksen sisätilojen kautta. Mahdollisuus katettuun henkilökuntapysäköintiin kauppakeskuksen pysäköintitalossa. Kaikki palvelut, lounaspaikat ja kahvilat lähellä. Alueella maksuton asiakaspysäköinti.

Kuva toimitilasta
  • Osoite: Siltapuistokatu 14, 28100 Pori
  • Tyyppi: Toimistotila
  • Pinta-ala: 465,00m2
  • Kauppatapa: Vuokrattavana
  • Vuokrattavana
  • Hinnan lisätiedot: Ei alv tietoa