Toimitilan Pohjoisranta 11 tiedot:

Heti vapaa kolmannen kerroksen toimitila puuvillatehtaan vanhassa kutomossa. Esteetön kulku tilaan Pohjoisrannan puolelta (hissi ja portaat). Modernit läpitalon tilat joissa upeat tiiliseinät ja korkeat kaari-ikkunat, jotka tuovat vanhan ajan tunnelmaa. Näkymät sekä jokirantaan että kauppakeskuksen sisäpihalle. Siisti ja nykyaikainen keittiö, wc-tilat ja pukuhuoneet säilytyskaapein. Tilat ovat tarvittaessa muokattavissa.

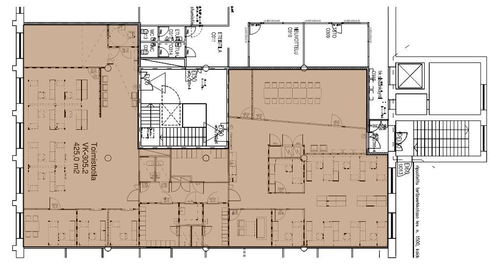
Kuva toimitilasta
  • Osoite: Pohjoisranta 11, 28100 Pori
  • Tyyppi: Toimistotila
  • Pinta-ala: 425,00m2
  • Kauppatapa: Vuokrattavana
  • Vuokrattavana
  • Hinnan lisätiedot: Ei alv tietoa