Toimitilan Pohjoisranta 11 tiedot:

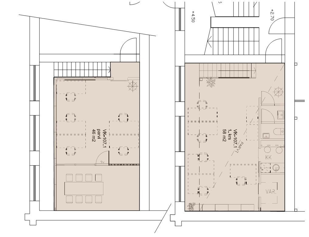
Avara ja valoisa heti vapaa kahden kerroksen toimistotila hurmaavassa vanhan Puuvillan miljöössä. Kulku Pumpulipihaksi nimetyn puuvillatehtaan sisäpihan kautta. Alakerrassa wc, keittiö, arkistohuone/varasto ja avaraa yhtenäistä tilaa, yläkerrassa toimistotilaa ja lasiseinällä erotettu neuvotteluhuone. Rauhallinen sijainti, kulku ylä- ja alakerran tiloihin myös omista sisäänkäynneistä tarvittaessa. Kauppakeskuksen kaikki palvelut aivan vieressä. Isot ikkunat ja vehreä ja tunnelmallinen sisäpihan näkymä.

Kuva toimitilasta
  • Osoite: Pohjoisranta 11, 28100 Pori
  • Tyyppi: Toimistotila
  • Pinta-ala: 104,00m2
  • Kauppatapa: Vuokrattavana
  • Vuokrattavana
  • Hinnan lisätiedot: Ei alv tietoa